Service-Hotline+43-720-800060Mo-Fr: 10 - 18 Uhr

Hagor BrackIT TnT

Hersteller: Artikelnummer: 14470994000
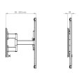
Wandhalterung neig- & schwenkbar - 40-65" - ultraflacher Wandabstand von min. 38 mm - VESA max. 400x400 - max. Traglast 40 kg
134,90 €
inkl. USt. , zzgl. Versand
Stk